Vigelen B 115 | Klassisk og flott fjellhytte for storfamilien
Populær og tidløs klassiker
Vigelen B er rett og slett en skikkelig vakker hytte som står flott frem i sine omgivelser. Her er det plass til mange hyttegjester samtidig som den oppdelte bygningskroppen gir et harmonisk eksteriøruttrykk.
Vigelen B har fire soverom og to bad, men går innenfor de aller fleste reguleringsbestemmelser for grunnflate.
Med oppvarmet bruksareal på 149 kvm kan denne hytta bygges i både 6" og 8" tømmer.
Vigelen B kan selvfølgelig bygges slik at den tilpasses dine behov og ditt hytteliv.
Stuen
I den ene fløyen ligger stuedelen med direkte adkomst til terrassen i front. Store vindusflater som slipper lyset inn og god takhøyde. Iom. at det er kun én etasje i denne fløyen, så får stua stor takhøyde.
Kjøkkenet
I senter av hytta ligger et romslig kjøkken med plass til hele familien. Åpen løsning mot spisestuen.
Badet
Hytta har to bad. Det ene badet har inngang fra hovedsoverommet.
Soverom
Hovedsoverommet er romslig med eget bad. Det er totalt fire soverom, to i hver etasje.
Loftstue
Modellen har en romslig loftstue som kan innredes etter behov og ønsker. I 2. etasjen ligger det også to soverom og ett bad.
Bildet viser kundevariant som har 50cm lavere takhøyde på loftstua enn standardmodellen.
Tekniske data
Antall soverom: 4
BRA-i (internt): 148,5 m²
BRA: 148,5 m²
BYA: 114,9 m²
Lengde: 18,0 m
Bredde: 7,7 m
Standard tømmerdimensjon er 6''.
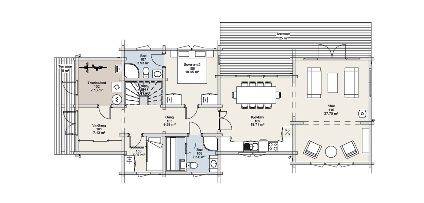
Planløsning plan 1
Bilder som ligger under "Kundegalleri" viser hytter det er gjort tilpasninger på for kunde, og de vil derfor ikke være helt like standardmodellen her.
Planløsning plan 2
Tilpasninger
I mange av våre kundeprosjekt gjør vi tilpasninger på hytta eks. på vindusplassering, planløsning, overbygget areal eller mønehøyde for å tilpasse hytta til akkurat deres hytteliv og reguleringsbestemmelsene for tomta.
Vigelen B 115 kan også leveres i 8'' tømmer med noen tilpasninger.
Våre selgere er gode rådgivere og vi har mange arkivtegninger som kan vise løsningen også for dere.
Vi liker å finne gode løsninger sammen med våre kunder slik at dere får deres drømmehytte samtidig som vi passer på at offentlige og tekniske krav til eks. brannsikkerhet, lysinnslipp og tilgjengelighet ivaretaes.
Pris
Byggesettpris inkl. innvendige materialer: kr. 2 650 000 inkl. mva.
Et byggesett er materialer. Inkluderer ikke montering/oppføring av byggesettet eller andre tjenester. Pris er angitt for byggesett i standard utførelse i 6'' jf. leveransebeskrivelse.
Ta kontakt for prisestimat eller konkret pristilbud på andre leveransegrader.
Andre leveransegrader:
- Nøkkelferdig bygg: Alt er inkludert over støpt plate. Bygget er innflytningsklart.
- Tett bygg: Ferdig oppsatt, tett bygg utvendig. Klart til innvendig arbeid.
Leveransegrad tilpasses til det kunden måtte ønske ved å trekke fra eller legge til på standardleveransene.
